Kitchen Design
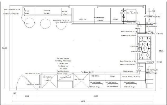
BDM Projects Ltd Recently designed and installed a high end Kitchen for a very particular client.
The internal walls had to be reconfigured to suit the new layout.
Light & Shadow
The client was looking for a more contemporary look with an open plan feel.
Building control was involved as there were structural alterations to internal walls and footings had to be created to take into account reconfiguration.
But needless to say the client was impressed and very pleased with the outcome of the refurbishment that was delivered.
Find out what BDM Projects Ltd can do for you with their fantastic interior design team by contacting us today.
BDM Projects Ltd – Location
Bell Farm
207 London Road,
Wickford,
Essex SS12 0LG
01268 720130
Office Hours
Mon-Fri: 08:00-17.30
Saturday: Closed
Sunday: Closed










